479 PANTANO DriveSt. Augustine, FL 32095




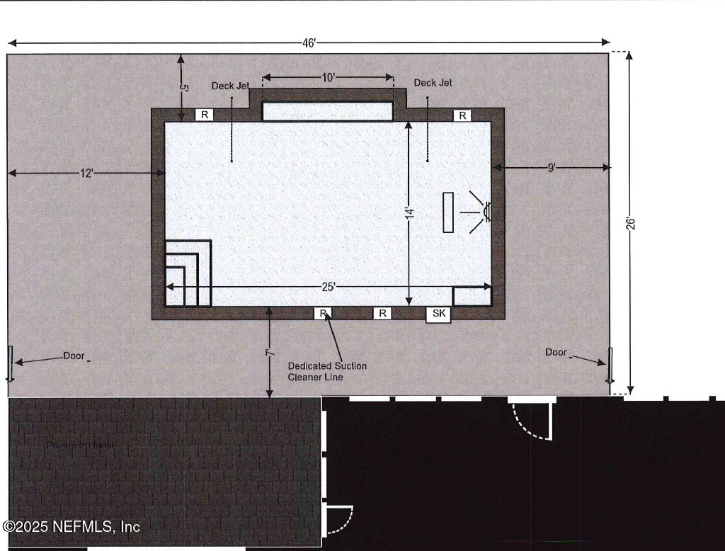
Discover the stunning ''Harper'' new construction POOL HOME by MasterCraft Builder Group, perfectly located just north of Historic St. Augustine in the desirable gated community of Madeira. This two-story home offers a spacious owner's suite and guest bedroom with full bath on the main level, plus a versatile flex room/office, pool bath, and pocket office. Upstairs, find two additional bedrooms, two full baths, and a large bonus room. The gourmet kitchen impresses with Electrolux appliances, Cambria quartz countertops, soft-close dovetail drawers, double-stacked cabinets, and an oversized pantry with space for a second refrigerator. All appliances—including washer and dryer—are included. Luxury vinyl plank flooring enhances the main living areas, paired with solid-core doors throughout. Enjoy the Florida lifestyle with a tranquil water view, relaxing by your private pool, or savoring your morning coffee on the spacious covered lanai. Estimated completion February 2026
| 2 months ago | Listing first seen on site | |
| 2 months ago | Listing updated with changes from the MLS® |
Listing information is provided by Participants of the Northeast Florida Multiple Listing Service(dba realMLS). IDX information is provided exclusively for personal, non-commercial use, and may not be used for any purpose other than to identify prospective properties consumers may be interested in purchasing. Information is deemed reliable but not guaranteed. Copyright 2025, Northeast Florida Multiple Listing Service(dba realMLS).
Last checked: 2025-12-23 07:26 PM UTC



Did you know? You can invite friends and family to your search. They can join your search, rate and discuss listings with you.