505 PANTANO DriveSt. Augustine, FL 32095




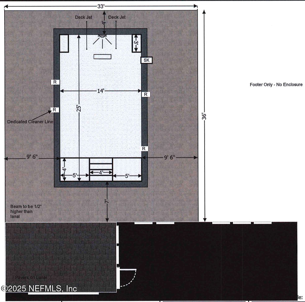
Discover this refined ''Mason'' new construction POOL HOME by MasterCraft Builder Group, ideally located just north of Historic St. Augustine in the sought-after community of Madeira. This single-story residence showcases 12' ceilings in the main living spaces and an open-concept layout enhanced by a versatile flex room/office. A private hallway leads to two secondary bedrooms and a full bath, while an additional front bedroom features its own ensuite. The gourmet kitchen boasts Electrolux appliances, Cambria quartz countertops, soft-close dovetail cabinetry, double-stacked uppers, and an oversized pantry with room for a second refrigerator. All appliances, including washer and dryer, are included. Engineered wood floors elevate the main living areas, complemented by solid-core doors. Enjoy exceptional Florida living on the expansive covered lanai or taking a dip in your private pool. Estimated completion February/March 2026.
| 4 weeks ago | Listing first seen on site | |
| 4 weeks ago | Listing updated with changes from the MLS® |
Listing information is provided by Participants of the Northeast Florida Multiple Listing Service(dba realMLS). IDX information is provided exclusively for personal, non-commercial use, and may not be used for any purpose other than to identify prospective properties consumers may be interested in purchasing. Information is deemed reliable but not guaranteed. Copyright 2025, Northeast Florida Multiple Listing Service(dba realMLS).
Last checked: 2025-12-07 03:15 PM UTC



Did you know? You can invite friends and family to your search. They can join your search, rate and discuss listings with you.