383 LAMEGO LaneSt. Augustine, FL 32095




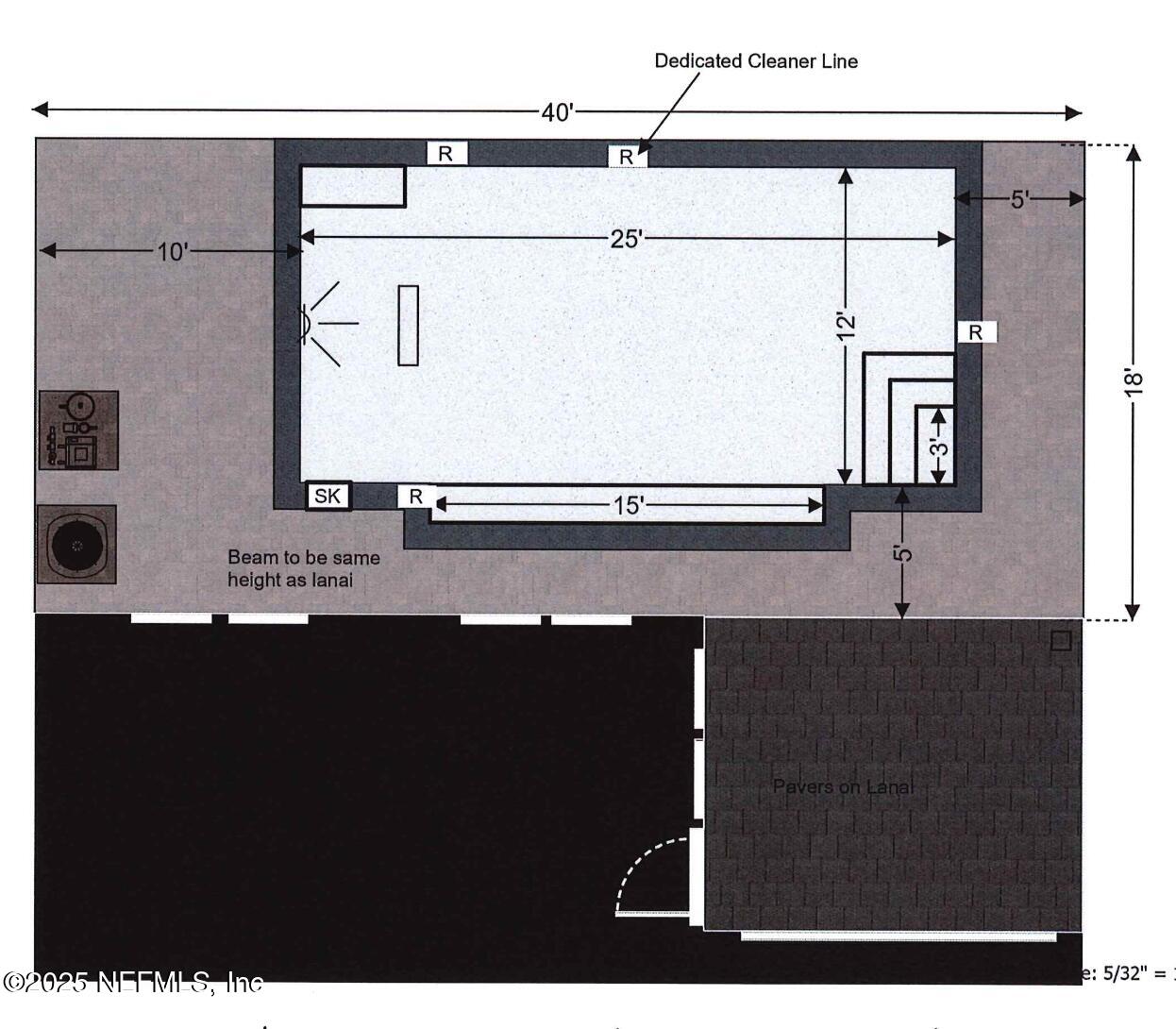
Discover this refined ''Stokes'' new construction POOL HOME by MasterCraft Builder Group, perfectly positioned just north of Historic St. Augustine in the sought-after community of Madeira. This single-story residence showcases an expansive open-concept design anchored by a sophisticated flex room with French doors, ideal as a dedicated office or additional bedroom. The gourmet kitchen impresses with Electrolux appliances, Cambria quartz countertops, soft-close dovetail cabinetry, double-stacked uppers, and an oversized pantry with room for a second refrigerator. All appliances—including refrigerator and washer/dryer—are thoughtfully included. Luxury Vinyl Plank flooring enhances the main living areas and bedrooms, complemented by solid-core doors throughout. Embrace the Florida lifestyle in your screen-enclosed pool while enjoying serene sunset views over the pond.
| 2 months ago | Price changed to $675,000 | |
| 2 months ago | Listing updated with changes from the MLS® | |
| 3 months ago | Listing first seen on site |
Listing information is provided by Participants of the Northeast Florida Multiple Listing Service(dba realMLS). IDX information is provided exclusively for personal, non-commercial use, and may not be used for any purpose other than to identify prospective properties consumers may be interested in purchasing. Information is deemed reliable but not guaranteed. Copyright 2026, Northeast Florida Multiple Listing Service(dba realMLS).
Last checked: 2026-03-12 09:28 AM UTC



Did you know? You can invite friends and family to your search. They can join your search, rate and discuss listings with you.